深圳客户选橙家装修中山新房,点赞橙家异地装修省心又省事
大城市物价高,买房不容易。只能退而求其次,在其他地方买房了,也算是有自己的一个小家了。异地买房装修,是我们这种在工作地买不起房子的人心中用久的痛。业主王先生一家人在深圳打拼,深圳房价太高,只能存钱在中山买房了。装修本来就繁琐,异地装修难度就更大了。
王先生透露,买房后纠结了1个月,从最开始考虑让老爸自己装,到最后决定找装修公司全包服务,下定决心只因为选中的橙家品质和效率双高,让异地装修省心又省事。最近不少朋友都买房打算年后装修了,王先生总结了一下他们家的装修经历,打算给朋友一个参考。
以下是橙家业主王先生的装修经历分享。
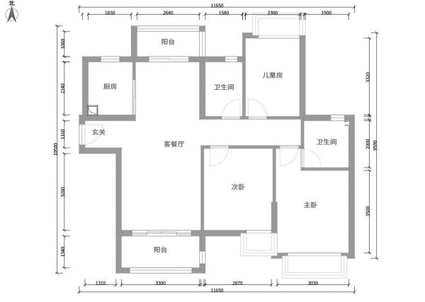
面积:97平方米
户型:3室2厅2卫
装修公司:橙家

这是我们家的户型图,我家是3室2厅1厨2卫,我们家常住的就是三个人,然后父母会偶尔过来住一下的,所以空间还是很足够的。
买房花了很多钱,想着买了不装修等于浪费,就咬咬牙贷款装修了。开始没打算找装修公司的。老爸在老家是干泥水的,确实有想过叫他过来找几个散工自己装。结果,逛了一天材料市场发现根本挑不出个所以然,感觉选择太多了、太泛滥了。再加上,自己老爸也一把年纪了,不想他太辛苦。最终还是打算找装修公司,想着预算是确定了,按预算来选就行。然后在网上搜索到了几个做全包的品牌,看中就是万链和橙家,万链在中山没有门店,所以就选择去橙家看一下。下面再跟大家分享其他的过程。
一路过来选择橙家最放心的是质量的问题。当时带着我爸一起去看橙家工地,我爸都做了几十年泥水了,对这些质量的东西很在行。一看到橙家的水电施工工地我爸开始跟我说很赞,水电的施工很标准化,所以当时已经很承认这个品牌了。去到了门店我爸一开始会嫌弃说选择太少了,材料的款式不多,当时自己也是这样子觉得的。但是听了设计师的讲解之后,我也明白了其实主流的色系就这几个,但是这些都是大品牌的色系肯定是主流的颜色,我喜欢的颜色也在里面,那行。

在橙家整个装修过程,大概用了2个月左右吧。每一个装修节点有验收的,我可以在线看到每一个阶段工队的进度和质量。我特别喜欢橙家的科学工期和流程化施工,每一套操作下来就像是工厂里的流水线生产,这样的话标准化的轻度会越来越高,质量越来越稳定。工长和管家很积极地沟通装修过程的小问题,装修这么大的一个项目有一点小问题是很正常的,怎么去商量和解决是最重要的。异地装修,天天跑回去不现实,橙家线上施工汇报的流程,让我省心又省力。
整体出来的效果不错,我软装也在橙家订的,效果我很满意、比起我在深圳租的房子确实好很多倍、心情开朗。验收下来没问题,大大的满意,钱花得值才有意义,如果只有10块钱我都会做10块钱的事,我不会藏着掖着。人生嘛!攻破一个难关有一个难关才有意义。橙家还提供装修分期的服务,整个过程下来我没什么忧愁,只要考虑效果和每个月装修贷款的1000多块钱就可以了,大大满意。




我选择的是现代的风格,紧紧凑凑的,有个家的感觉。地板是灰色的很现代的格调了,当时只有几块砖可以选择的时候我没想到最后可以搭配出这么好看的东西的。老爸看到新房都说,装修的很好。
年末将至,年前装修是来不及了。比较建议大家可以先对比,然后提前确定。不少装修公司年后都会降价,最好提前确定。像橙家,他们来年也涨价升级,最好还是先到店了解一下。反正我自己装修,我觉得质量和效率都挺好,符合我的要求。其他人,我就当给个参考,喜欢就去了解。
【本文属企业供稿,仅传递信息,不代表网易家居观点】
网址:深圳客户选橙家装修中山新房,点赞橙家异地装修省心又省事 https://www.jiaju82.com/news-view-id-637099.html

