宁波橙家业主点赞橙家服务贴心,晒文感叹全包装修够省心!
近日,宁波橙家业主发文表示,选择橙家装修,让他感觉到非常的幸运。据了解,宁波橙家业主本来也想找熟人装修,但是知道朋友她家找熟人装修的惨痛经历后,最后花了2个月时间,网上看评价,实地考察,最终评分决定选择橙家装修。装修结束后感叹,“当初找橙家装修的决定有多对。”
以下为宁波橙家业主晒文分享,给大家看看我家的在橙家装修的效果。
面积:110平方米
户型:3室2厅2卫
装修费用:16万(硬装)+(全屋衣柜)
软装风格:现代简约
装修公司:橙家宁波环球店
3室2厅1厨2卫的中等户型,套内面积89平方。

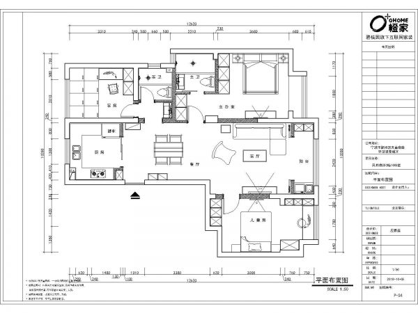
宁波橙家业主对设计要求挺高,卫生间一定要干湿分离,小房间阳台要拓成房间,满足基本家庭3-5人使用。风格上要现代简约风格,符合人体工程学原理,住得舒服。
针对客户的需求,橙家宁波设计师对客房做了榻榻米设计处理,空间虽然小,但做客房完全没问题,平时还没用来收纳,这个设计特别好。阳台做了生活区设计,用来放洗衣机和收纳,达到了业主要求的实用性。

设计师设计完后的方案
客厅
因为软装和硬装都是在橙家一起定制安装的,所以从设计到搭配都很协调。宁波业主是爱美之人,“最不喜欢就是那种,看起来不伦不类的搭配。”而橙家装修一整套的看起来就很和谐,虽然比不上那种特别高格调的装修,但是胜在选材各种都满足需求,而且性价比高。

橙家设计师建议电视机背景墙整面刷高级灰,其他都用优雅白色调,这样的客厅装修得简单大气,没有很复杂的设计。业主还是喜欢白色,主要是喜欢比较简单清新一点的布置,所以现在看到这个效果还是很喜欢的。然后有落地窗,采光很好,虽然没有装很多的灯饰,但是也是宽敞明亮。
餐厅
餐厅设计简约中有小心思,墙上的装饰画特别喜欢,很夏天。墙面橙家设计师都没做其他装饰。乳胶漆是大品牌,质量不错,颜色也挺好看,但是一点都不会死白,所以不用做其他装饰都好看。

卧室
业主在卧室选择上纠结了很久,究竟选铺地板还是铺地砖。后来橙家设计师详细给我分享2种材质的区别,最后我就选了地板。橙家的地板是大自然,品牌货,质量有保障。橙家材料的款式是少点,但是胜在都是大品牌有保障。

卧室用是比较大方的设计感,橙家设计师建议直接整个房间深邃白,这样整理看起来简约大方。简单的设计,跟客厅呼应,卧室都点缀了黄色元素,眼前一亮。次卧相对色彩比较深一些,是给家里老人准备的。

厨房
厨房还是以实用性为主,打造了整面墙的收纳吊轨。橙家的橱柜不限米数,这个对于厨房大的业主来说,就比较省钱了。业主表示,最喜欢大单盆设计,这些配件的用心给橙家加分不少。

从定下橙家到最终业主选定好日子入住,业主大概花了半年时间。
最后,这位宁波的业主表示,橙家的家居顾问都专业又有耐心,去橙家工地参观加深了我们的新人,施工现场也挺好的。“装修,无非就是找个双方一拍即合的装修公司。”业主表示,橙家服务态度好,流程规范,自己亲身装修过了,才敢出来证明找橙家装修不后悔。
【本文属企业供稿,仅传递信息,不代表网易家居观点】
网址:宁波橙家业主点赞橙家服务贴心,晒文感叹全包装修够省心! https://www.jiaju82.com/news-view-id-637100.html

