现代风格装修案例
发布时间:2019-09-08 12:03
案例详情 轻夫妻居住,喜欢黑白灰色调、现代感较强的空间设计;整体空间造型简洁,多以材料增加层次感;为满足收藏和读书的喜欢,有设计开放性书房,增加空间之前的互动感;

灰色石材背景墙及胡桃色地板,营造出整体色调相对较重的空间感,搭配深色电视柜及白色沙发,曾家空间的层次感;整体空间没有饱和度较高的家具及配饰,多以不同深度的灰色系列家具饰品进行层级的划分;

餐厅及厨房延续客餐厅的色调,整体以灰色调为主;为满足业主需求,将厨房

次卫在灰色调的基础上,材料使用较多,层次感更加丰富;

主卫以灰色瓷砖搭配胡桃木门板,增加空间的现代感; 次卫

主卧除灰色调框架外,使用了黑色皮质的床,给空间更加沉稳的感觉;为达到业主想要的卧室效果,卧室不设有主灯,多以筒灯台灯辅助光源为主,因造出慵懒昏沉的氛围;

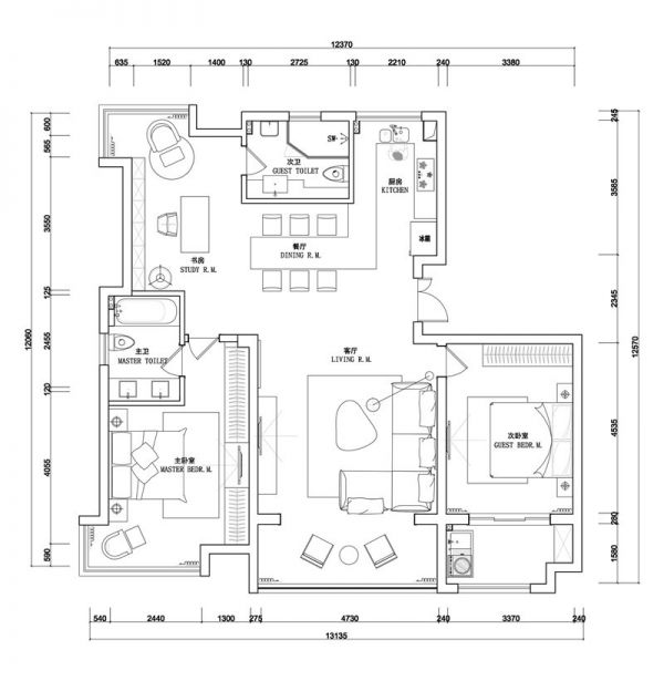
现代风格装修效果案例平面图
网址:现代风格装修案例 https://www.jiaju82.com/news-view-id-663174.html