北欧混搭风
发布时间:2019-09-08 12:03
案例详情 二代人居住,男主完美主义的台湾人,女主开朗爱笑,新婚夫妻,酷爱水泥灰,酷爱烹饪,对电器要求高,所以在设计之初,他们便要求设计师为他们打造一处宽敞的厨房。

现代风格的硬装框架搭配北欧风格的元素,大胆加入正红色和莫兰迪绿色,提高视觉冲击,增加空间的设计成分;阳台新建地台,充分利用视线效果好的优势,增添出一处休闲娱乐功能区域;

整体色调比较稳重,减少杂乱的颜色;衣柜与墙面做整体嵌入,颜色统一,提高设计感及整体性。

以灰色调为主,加入莫兰迪绿及灰绿色,增加空间的色彩丰富性;主灯以装饰性为主,用床头吊灯及落地灯辅助光源来丰富、提高空间调度。

设计成半开放卫生间,来提高因为格局问题产生的空间亮度不够的问题;淋浴区及马桶区域都有独立空间,能满足同时使用且互不干扰;

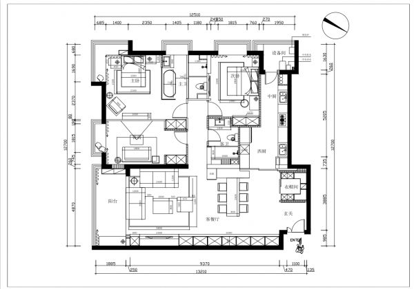
原装修房屋平面户型图
网址:北欧混搭风 https://www.jiaju82.com/news-view-id-663175.html