石景山杨庄北区84平装修案例
发布时间:2020-04-04 09:01
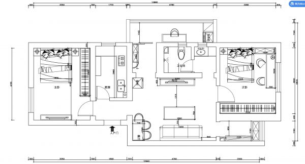
案例详情 业主需求:我的装修预算是11万左右,室内面积为90平方米。要求舒适,设计新颖有创意,空间利用合理。设计说明:本案为两居室,建筑面积为84平米,使用面积74平米,设计解决问题主要是次卧窗子太小,采光不好。厨房色彩明亮,布局紧凑,给空间增加了通透感。卫生间布局整齐,注重功能性。预算说明:工程造价:11.5万

一张沙发,一个茶几,一台电视机,屈指可数的几件家具用品,二三十平米的活动空间,客厅却是家人、欢声笑语的聚集地,父母看着属于他们那个年代的电视剧,孩子在儿童活动区玩得不亦乐乎。

你们猜猜墙面用的是涂料还是墙纸呢?

卧室是家里私密性最强的空间,人的一生有三分之一的时间是睡眠时间,所以卧室的环境显得尤为重要

一张床,营造一个舒适的卧室,带来优质的睡眠状态和精气神,每天都是元气满满。

在忙碌的生活情境下,早餐急急忙忙,午餐外卖解决,晚餐成为一家人难得相处的时光,也只有在晚餐时刻才能找回妈妈的味道,世界上任何一家餐厅都做不出的美味。孩子帮忙把做好的菜放到餐桌上,让妈妈的味道多添一份幸福的味道,饭菜香味悠远而飘逸。

家是什么?丰子恺说,“这里是我的最自由、最永久的本宅,我的归宿之处,我的家”,在汪曾祺的心中,“家人闲坐,灯火可亲”是冬日里最暖的场景。家,原本是一座冰冷的建筑物,因为有了家人,家变成了最温馨的存在。
网址:石景山杨庄北区84平装修案例 https://www.jiaju82.com/news-view-id-696357.html