发育所老房改造装修案例
发布时间:2020-04-04 09:01
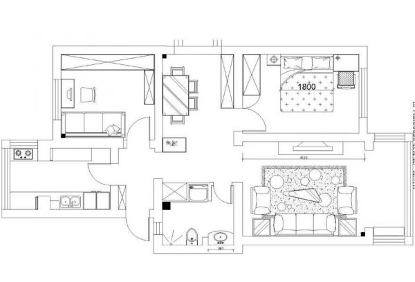
案例详情 业主需求:我的装修预算是11万左右,室内面积为100平方米。要求舒适,设计新颖有创意,空间利用合理。设计说明:本案为两居室,建筑面积为100平米,使用面积90平米,以温馨为主为您打造舒适的家预算说明:工程造价:12万

一张沙发,一个茶几,一台电视机,屈指可数的几件家具用品,二三十平米的活动空间,客厅却是家人、欢声笑语的聚集地

在忙碌的生活情境下,早餐急急忙忙,午餐外卖解决,晚餐成为一家人难得相处的时光,也只有在晚餐时刻才能找回妈妈的味道,世界上任何一家餐厅都做不出的美味。孩子帮忙把做好的菜放到餐桌上,让妈妈的味道多添一份幸福的味道,饭菜香味悠远而飘逸。

父母看着属于他们那个年代的电视剧,孩子在儿童活动区玩得不亦乐乎

卧室是家里私密性最强的空间,人的一生有三分之一的时间是睡眠时间,所以卧室的环境显得尤为重要。一张床,营造一个舒适的卧室,带来优质的睡眠状态和精气神,每天都是元气满满。

失意劳累时,家是为你遮风挡雨的避风港;人生迷途时,家是你在黑夜行走的一盏明灯;平静淡泊时,家是柴米油盐酱醋茶。家,是房屋,更是在这房屋内长年累月的幸福生活,每个人都对家充满期待,期待幸福的环绕。
网址:发育所老房改造装修案例 https://www.jiaju82.com/news-view-id-696358.html