凯德麓语 欧式简约
发布时间:2020-09-14 21:01
案例详情 作为第二居所,这栋房子承载了更多让主人放松下来的使命,节假日的时光,三代人在这座房子里,一起创造故事,一起记录故事,一起在故事的场景中生活。喜欢欧式,但是不拘泥于欧式,将传统与当代的元素通过设计师的手法,巧妙的融汇、贯穿、古中有今,今里衬古。这也正体现了三代人的家庭构成,沉稳、时尚、天真烂漫。业主向往着他们的新家,作为设计师我也同样如此,这里值得他们发生更多的故事,也期待着给他们带来更多的欢乐

客厅背景墙设计为弧形墙体,为简洁的空间增添了一份不简单,富有设计感的吊灯、转角的花线无不为这个空间提色,简洁大方的色调大气时尚。

餐厅位于花园层,顶面设计因地制宜,将顶面的梁体通过异形吊顶弱化,转弊为优,圆形地面拼花与圆形餐桌相辅相成,整个空间的融合度得到化体现,这正是设计的迷人所在

此空间为二层主卧空间,整个空间的小心机在窗帘盒和床头背景墙出体现,黄金分割的不对称墙面线条,窗帘盒旁的弧形吊顶收边,让空间打破传统的对称理念,体现设计的创新性。

整个三层空间的顶面均为斜顶,除了中心区域进行吊顶,其他区域为原斜顶,整个空间现代感十足利用原始结构创造出不一样的时尚感。

三层平面方案,空间的利用整个不规则的屋顶结构,是空间利用化。既满足使用需求,也有设计的美感在其中。两者结合的恰到好处。

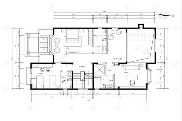
二层平面方案,为主要的休息空间,主卧为套房的设计,次卧为孩子的房间,加独立卫生间的设计。书房的设计基础为卧室的格局,也是独立卫生间的设计。为后期改为卧室预留了基础。

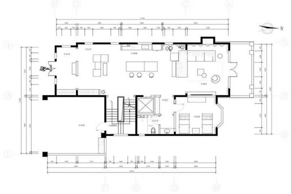
地下一层平面方案,主要为储物和娱乐空间,餐厅,健身房,影音室,洗衣房,厨房,保姆间等空间。与花园相连,享受生活的惬意与美好。

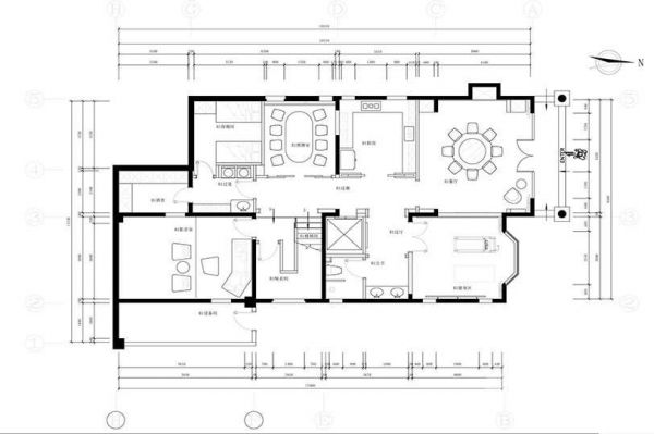
一层的平面方案,主要为会客和接待使用,预留了客房的空间,为留宿的便宜提供休息空间。即贴心又暖心。西厨的设计让接待客人时不用来回奔波的取水洗水果。
网址:凯德麓语 欧式简约 https://www.jiaju82.com/news-view-id-721455.html