青青家园 欧式古典
发布时间:2020-09-14 22:01
案例详情 进口瓷砖、实木复合地板、无纺布壁纸、石材楼梯、石膏板吊顶、顶部石膏制品、暖灰烤漆墙板、布艺、乳胶漆、地毯等。 项目地处北京市朝阳区,离通州较近,业主置换的楼龄已经15年左右的二手房,需要重装。砖混结构楼梯房,一层二层小复式楼,业主看中本房带前后花园。业主夫妻45岁左右,优雅大方,品味十足,儿子在国外上大学,毕业后计划回国发展,可能与父母同住在一起。老人偶尔来住。男主人喜好栽培、园艺、文玩等;女主人对居室要求喜欢优雅大方,经典内涵略带时尚的调调。

一层客厅 客厅通过多角度可看见室外景色 室内古典现代元素相结合,东西方文化交融。

一茶室及楼梯间,大理石楼梯玻璃护栏 视觉通透,楼梯间底下造景,新中式茶台搭配展示柜 ,满足主人的东方文化情节。

一层餐厅 餐厅大推拉门 可观赏室外花园 顶面新古典装饰花盘配现代吊灯 满墙西厨增加收纳空间和操作空间。墙板挂电视 满足就餐新闻

二层次卫,墙面卡拉拉白大理石瓷砖 通透明亮,搭配灰色地面,彰显空间层次

二主卧室 主卧床头有个通往东阳台的门,通过护墙板隐形门的形式 美化立面效果。

二层起居室 此空间提供主人生活起居 家人沟通交流,兼备书房功能

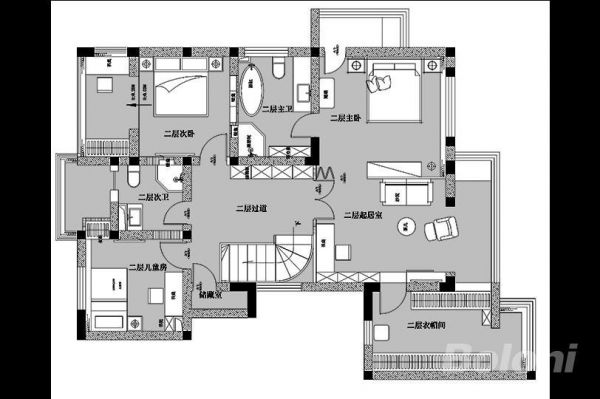
二层平面图设计说明:二层南面主卧大套房,包括起居室、衣帽间、卧室、主卫,舒适度高;北面安排次卧及儿童房次卫,满足未来儿子回国居住。

一层平面图设计说明:一层带前后花园,美哉!做了局部扩建,有了中西厨房,满足不同烹饪需求,餐厅、客厅 茶室和室均安排一层,动线流畅,功能齐全。
网址:青青家园 欧式古典 https://www.jiaju82.com/news-view-id-721456.html