苹果社区 现代简约
发布时间:2021-03-17 11:01
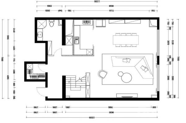
案例详情 简约的风格中添加了木元素,使空间看起来更温馨贴近自然,色调质朴;在收纳上一层增加了储物间,二层主卧室增加了衣帽间,儿童房增加了多功能收纳间,卫生间的盥洗盆挪到了卫生间外面,在多人使用上更方便,洗衣间做成了平开侧推入门的设计,在使用上也更便捷。

客厅空间摒弃了繁杂的吊顶,使空间更简洁大气;与楼梯之间用开放式的展示柜作为隔断,光线可以透入到楼梯间,增加了自然采光。

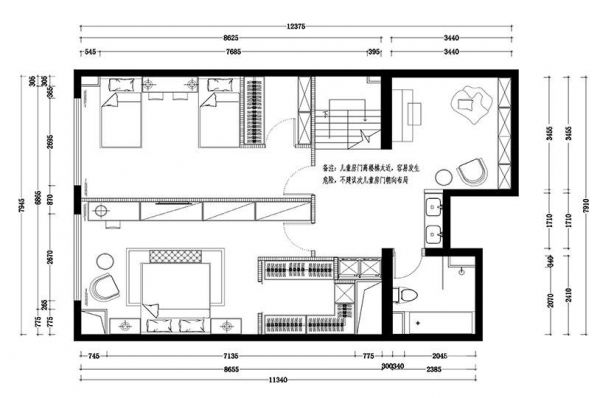
儿童房预留了新成员的空间,布置成两张床,用书桌分隔了两张床;背景采用彩色条纹的壁纸从视觉上来弱化顶面的梁结构,也给空间增加了一些儿童的色彩和活力。

厨房的部分是后期规划出来的空间,所以在与餐厅之间采用大面积的推拉移门方式增加通透性,平时也可以作为开放的空间使用。

二层的空间相对低于一层的空间,而且四周都有结构梁柱,所以在设计手法上采用简单处理的方式,用颜色和材质来调整空间的层次,吊灯也采用轻盈的设计产品。

本套案例最初是做办公室来用的,根据现在的客户居住人口重新划分了空间,一层为全家的共享空间,设置有客厅、餐厅、厨房,洗手间和入户的衣帽间;从设计上一层为动,二层为静的理念展开设计。

二层上楼梯直对的柜门内隐藏了洗衣烘干的功能,同时把卫生间的盥洗功能移到了外面;在结构上布置了主卧室和儿童房,书房,同时增加了两个衣帽间来加大储藏功能。
网址:苹果社区 现代简约 https://www.jiaju82.com/news-view-id-745863.html