国誉府 中式

餐厅设计没有用传统的圆形餐桌,而是考虑了西式的岛台作为餐桌,配合新中式风格的木质餐椅,将现代的元素与中式元素结合起来引入到厨房,结合餐厅酒柜的设计,使得整个空间更具时尚的感觉。

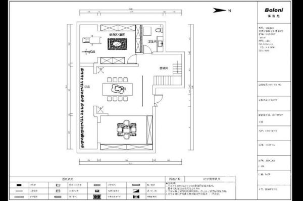
现代中式不是复古元素简单堆砌,中式风格设计并不是传统文化的复古设计,而是在现代的设计风格中融入古典元素。它不是“1+1=2”的简单堆砌。玄关改造成半镂空圆形设计,使得入户产生一种视觉的延伸感。

居室在色彩方面秉承了现代灰色的典雅,呈现着时尚的特征。在配饰的选择方面更为简洁,少了许多奢华的装饰,更加流畅地表达出现代文化中的精髓。为了给居室增添几分新意,饰以精巧的台灯和雅致的水墨壁画,使整个居室在现代中渗透了几许古韵气息。

多功能茶室营造的是极富中国浪漫情调的生活空间,用红木、藤编坐凳、紫砂茶壶以及一些红木工艺品等都体现了浓郁的东方之美,这正是新中式风格与其它风格所不同的地方。这种极简主义的风格渗透了东方华夏几千年的文明,它不仅永不过时,而且时间愈久愈散发出迷人的东方魅力。

客厅是传统与现代居室风格的碰撞,以现代的装饰手法和家具,结合古典中式的装饰元素,来呈现亦古亦今的空间氛围。中式风格的古色古香与现代风格的简单素雅自然衔接,使生活的实用性和对传统文化的追求同时得到了满足。影视墙的造型简洁现代,配以明式的家具,这种绝妙的组合给人以强烈的视觉意志力,成为时尚与古典的柔媚结合。

本层着重改造了主卧室的入户方式,将主卧的入户及书房用隐形门的处理方式与酒柜处理成一个整体,避免了从客厅入主卧室的尴尬。

挑空处开放式的条案,打造了主人的喝茶休闲娱乐空间,配以平台式榻榻米的空间,既是茶区茶具的展示空间,也是改扩建的一个延伸,配以窗帘,为客人居住创造了一个灵活的空间。
网址:国誉府 中式 https://www.jiaju82.com/news-view-id-745864.html