双珑原著 奢华
发布时间:2021-03-17 11:02
案例详情 新古典主义装饰风格的住宅,空间装饰讲究通过线与线的交织、细节线条多以弧线为主,拼接形成不同的图案,营造出雍容淡雅的韵律感,而细节处刻意雕刻而成的线条,更让人产生一种精雕细琢的品位。

餐厅的设计上摒弃了过多的约束,采用古典的石膏线线条,用橘黄色的餐椅和挂画在其中起到点缀的作用,悬挂式的简约灯具增加了时尚感和韵律感。

B2门厅使用了简洁的家具摆设,用红、蓝、黑的颜色搭配,以及铜制灯具和现代抽象挂画的摆设,使入户空间整体时尚、沉稳、简洁。

副厅在注重装饰效果的同时,用黑色岩板、铜条、、烤夹丝玻璃完美的结合也让人在入户即可享受材质带来的品质感和视觉冲击感。

多功能影音厅的精华-高雅的底蕴,以灰色的硬包、雪花白的大理石、米色皮质的功能沙发的色彩,体现低调奢华的细节。

健身房在色彩上运用时下最流行的深灰色调与光感呼应,在材料上使用抽查壁画作为背景墙,加以绿色的植物使整个空间色彩灵动而不失活泼,一切都试图在材质中体现艺术性。

过厅以现代和古典并重为设计原则,白色与金属色相呼应的边几搭配黄铜几何饰品与古典的木质护栏相映衬,给空间带来视觉上的层次感。

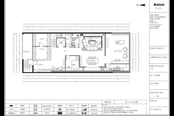
首层层将入户门外移,增加了入户的仪式感和鞋帽空间,入门首先以副厅做为放松,面对花园,配以小小的休闲阅读区,那是一种精神世界的享受。

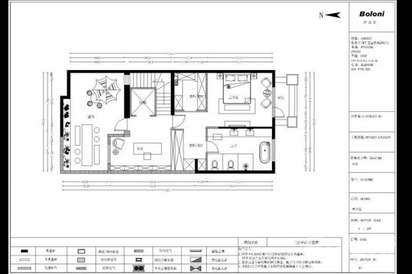
B1层加建的健身房配以影音室和水吧区,那是一种时尚的年轻的生活方式,空间之间既连贯,又不是个空间的独立性,三五好友的聚会那自然是舒适惬意。

三层通过加建,重新改造了整层的整体布局,从功能上做了更多的分离,使用起来互不影响,比如将男女主人的衣帽间,书房以及卫生间内洁具的使用,这是一种高端的享受。
网址:双珑原著 奢华 https://www.jiaju82.com/news-view-id-745866.html