嘉铭桐城 中式
发布时间:2021-03-17 11:02
案例详情 此风格为新中式风格,格局上把厨房打通了,变成了半开放式厨房,为了解决油烟问题,做了两扇透明的推拉门,一门二用;门厅处利用厨房推拉门的墙体单独设计了两个对称的装饰柜,镜面门,这样既增加了空间感也起到了实用性;电视背景墙采用了整面墙为胡桃木墙板并且对小孩房间门做了隐藏,装饰性和效果都及佳。

此空间为客厅空间,整体色调以胡桃木为准,电视背景墙采用了整面胡桃木墙板并且对小孩房间门做了隐藏,装饰性和效果都及佳。

此空间为卧室空间,宽度不宽,通过自带的阳台让空间变得更大,通过带有中式元素的推拉门衣柜和顶线的结合,让空间变得更加舒适,温馨。

此空间为厨房及餐厅空间,格局上把厨房打通了,变成了半开放式厨房,为了解决油烟问题,做了两扇透明的推拉门,一门二用,把厨房餐厅融为了一个空间,大U型的厨房操作台使得利用空间更大,更明亮。

此空间为门厅空间,通过厨房格局的变动,增加了门厅鞋帽柜的功能,用一部分镜面门是门厅空间变得更大。

此空间为儿童房空间,由于房间比较狭长,在靠窗户处做了一个榻榻米,可以当个平时的休闲娱乐区;墙面颜色鲜明,和黑板漆的结合,让整个空间生机勃勃。

此图为原始结构平面图,户型方方正正,采光也不错;餐厅和厨房利用率不高,空间浪费较多,,用起来不怎么方便。

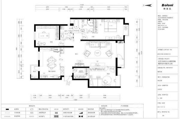
此图为平面布置图,格局变动较大,厨房做了半开放式的,两扇透明的推拉门;门厅处利用厨房推拉门的墙体单独设计了两个对称的装饰柜,镜面门,这样既增加了空间感也起到了实用性;电视背景墙采用了整面墙为胡桃木墙板并且对小孩房间门做了隐藏,装饰性和效果都及佳。
网址:嘉铭桐城 中式 https://www.jiaju82.com/news-view-id-745865.html