观湖国际 美式
发布时间:2021-03-17 12:01
案例详情 此风格为简美风格,通过格局的变动,改变了一些流动动线,客厅空间较大,窗户多,所以用柜子的形式做出了一个飘窗的感觉,这样既增加了储物空间,也在不浪费空间的情况下做出了延伸感;餐厅通过西厨功能的增加,利用率更高,使用起来更加方便;整体颜色以浅色为主,简美的沙发加上造型凹凸的柜子门板形式,让整个空间看起来宽敞,明亮。

此空间为中厨的空间,由于中西厨是分开的,所以风格略有不同,空间较小,采用现代玻璃门版橱柜,让空间显得干净利索,墙面局部采用了巧克力瓷砖作为装饰。

此空间为书房兼客房的空间,以榻榻米的形式,一屋多用;让小空间瞬间变得活起来,使收纳空间更多。

此空间为卧室空间,整体颜色以浅色为主,墙板+高床头的结合,让空间看起来既大方又宽敞,增加舒适度的同时也增加了空间感。

此空间为餐厅空间,客厅餐厅是连在一起的,所以在电视背景墙到餐厅墙面,整体做了墙板的形式,统一感更强;通过吊顶的区分,来把客餐厅空间完美分开,整体效果更强。

此空间为客厅空间,客厅宽度较宽,所以用柜子的形式做出了一个飘窗的感觉,利用率更高,也使空间有了延伸感;通过简美的沙发茶几和软装的搭配,让客厅的舒适度更强,更舒服。

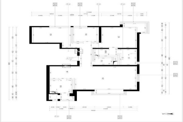
此图为原始结构平面图,户型方正,采光也很好,空间比较宽阔,但是利用率不是很高,储物空间少,使用起来不是很方便。

此图为平面布置图,通过格局的变动,改变了一些流动动线,客厅空间较大,窗户多,所以用柜子的形式做出了一个飘窗的感觉,这样既增加了储物空间,也在不浪费空间的情况下做出了延伸感;餐厅通过西厨功能的增加,利用率更高,使用起来更加方便。
网址:观湖国际 美式 https://www.jiaju82.com/news-view-id-745892.html