亚运新新家园 现代简约
发布时间:2021-03-17 12:01
案例详情 客户常住人口为三人,希望装出温馨但是不失品质的家,对生活的品质要求较高,整体通过黑、白、暖灰色的整体色调,体现出设计的质感

业主偏好蓝色系,所以整体卧室采用了低饱和度的深蓝色和灰蓝色进行空间的对比,深色家具的点缀使空间更具整体性

电视背景墙采用不用规格的材质进行拼接,左右错开的设计使客厅的整体空间更加灵动,打破死板单一的常规设计

卫生间三种不同纹理的材质,将空间进行区分,但是整体又不失和谐,墙上红色的金属线打破沉闷,使整体设计更具层次感

西厨岛台上无主灯的设计,避免了与餐厅主灯的冲撞,达到了强弱对比,点光源的设计使空间的灯光更加丰富

儿童房采用多种色彩相结合,把孩子灵动可爱的一面融入设计,整体采用儿童心理成长最佳的绿色作为基调

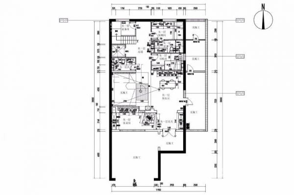
负一层主要为司机房、保姆房、以及业主的娱乐活动区域,工人房的划分,既保证居住空间的舒适又合理利用面积

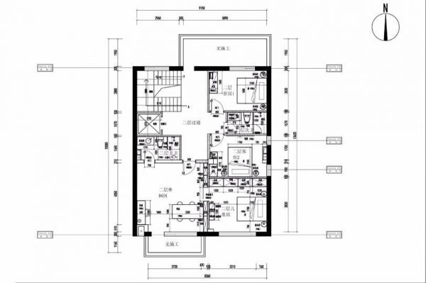
二楼主要为儿童的活动区域,留有活动空间,和次卧客房空间,以及学习娱乐的空间,整体面积较大,给孩子足够的玩耍面积

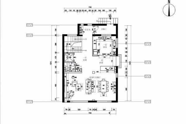
客户要求厨房餐厅客厅等公共活动空间相对较大,所以划分这些部分区域面积较大,卫生间做到了分区域,方便活动区域使用

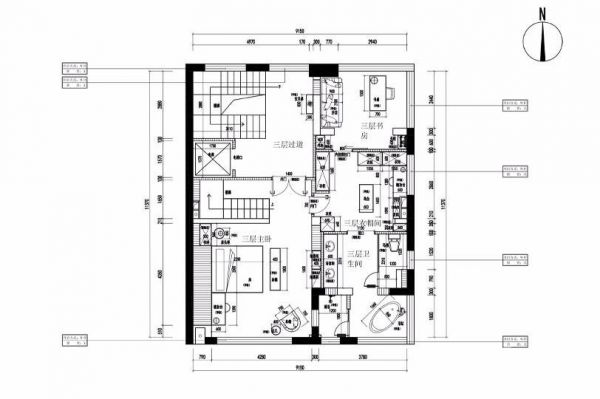
三层主要是男主人与女主人居住,面积较大,所以划分的区域属于各部分功能齐全且比较舒适的面积
网址:亚运新新家园 现代简约 https://www.jiaju82.com/news-view-id-745893.html