西山艺境 中式
发布时间:2021-03-17 16:01
案例详情 此案的屋主是一位沉稳的生意人,他崇尚东方风格的气质,又希望略带一丝淡雅的奢华与尊贵。因此,我们首先将总体设计的色调定位于沉稳的棕色,局部采用木色,将原本浮躁的氛围压制住,由于铜制本色的恰当使用,在总体氛围中起到了画龙点睛的效果,让整体空间层次更加分明,塑造沉稳的新中式氛围;其次,我们在软装上也进行了特别讲究的设计,客厅石材与实木的结合将总体色调与视觉效果融洽连贯。装饰柜的大小比例以及色调都控制得当,让空间气质均匀分布,加上抱枕、装饰挂画、花艺、装饰摆件恰到好处的陈设设计,让整体空间散发出淡淡的儒雅气质,更能让人不自觉的产生出与世无争的心态。

客厅的电视柜用于深棕色的胡桃木材,错落有致的隔板、加上灯光的呼应使整个空间显示出大气磅礴、沉稳静谧的感觉。枯山水的出现使空间多一丝禅意的环境。

西厨橱柜的颜色均用米色来修饰,用于对比两侧的深色酒柜,酒柜中间的餐厅背景墙采用浅灰色大理石材,圆形镂空部分加上山水壁画的烘托。使得中式与现代的结合完美呈现。

客厅是本案新中式别墅装修设计一家人放松与团聚的地方,以深色的木材,浅灰色的石材和富有质感的铜饰自外而内导入,恰到好处的枯山水景观,令室内装置与材质建构的语汇之间,产生一种与简单、纯粹、舒适共鸣的对话形式。

主卧的顶面造型多用于铜制的线条,结合背景墙的深色墙板。加上两侧中间的硬包装饰,材质的结合使得空间更加有层次肌理感。顶面没有加入主光源,以两侧的筒灯作为主要光源进行设计。光线开启时,打进硬包花色的墙面,很美丽。

女儿房的设计偏于现代,简洁的石膏装饰线条,浅灰色的墙纸、金属框玻璃门的衣柜加上灯光的烘托,使空间极具现代生活的方式.床头背景墙的顶面加入了现代洗墙灯,更好的展现了石膏装饰线条的美感。

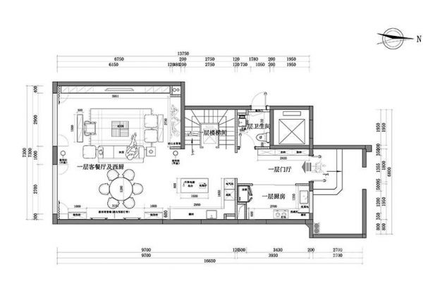
本案的布局调整在原有的卫生间进行拆除,改至电梯旁侧。在原有的基础上加大中厨,加至西厨。原有客餐厅有门窗进行了拆除往外推进,使得客餐厅将近七米的使用空间,无限的放大了功能区的作用,也与业主达成了一致。
网址:西山艺境 中式 https://www.jiaju82.com/news-view-id-745973.html