首创禧瑞墅 现代简约
发布时间:2021-03-17 16:01
案例详情 本设计中在简约的同时又辅以混搭,给空间注入新的元素,富有趣味性,同时避免突兀色彩的出现,以简洁的造型,完美的细节,营造出时尚前卫的感觉。

此图为一层餐厅效果图,地面采用云石灰的瓷砖,与墙面和顶面形成呼应,嵌入式的柜子与门相呼应着。

此图为一层客厅效果图,在沙发背景处设计了嵌入式的铜条的护墙板作为装饰。

此图为地下二层会客厅效果图,大面积采用了木材质,并吧木板作为沙发的背景墙,与书柜形成一致。

此图为一层客厅效果图,用大理石作为嵌入式电视的背景墙,两边也采用嵌入式的木质柜子,既对称又美观。

此图为二层主卧效果图,地面铺上浅灰色木纹鱼骨拼的地板,与床头灰色的墙形成了呼应,为空间增添了高级感.

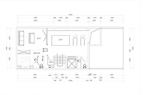
此图为地下一层平面布置图,设计上在活动健身区域保留了原有的挑空作为采光,让空间更为自然与自然界的光融为一体。

此图为地下二层平面布置图,整体空间以休闲为主主,在入户的地方设计了一个衣帽间,作为出入放东西的地方,合理又方便。

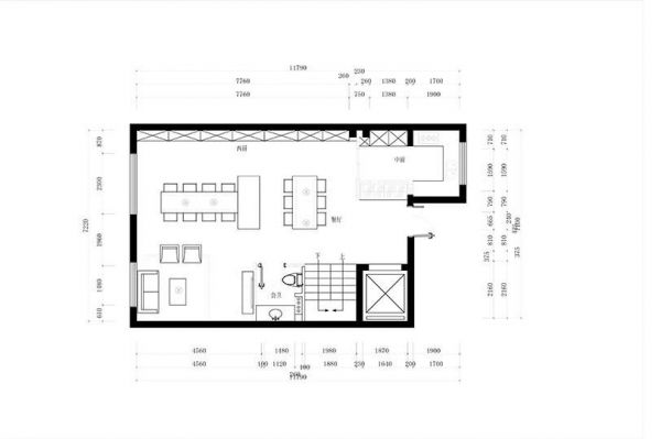
此图为一层平面布置图,这一层作为人们生活行为的主要空间,在西厨的地方设计了一整排的柜子,可以作为酒柜和储物柜,方便又实用。

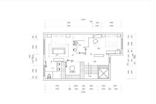
此图为二层平面布置图,分为主卧室和次卧室,主卧室的设计上满足了空间使用的需求。
网址:首创禧瑞墅 现代简约 https://www.jiaju82.com/news-view-id-745974.html