龙湖景粼原著 奢华
发布时间:2021-03-18 00:01
案例详情 经过跟业主的沟通,了解客户喜欢轻奢风格,轻奢风格的空间以金属、皮革的中性色调为主,用色彩的纯度传递细腻的质感。造型简洁,线条流畅的家具组合搭配,营造出稳定、协调、温馨的空间感受,满足现代年轻家庭的轻奢需求。

卫生间运用一些材料来塑造现代感。用瓷砖,铝扣板,还有比较简单一点的卫浴,营造出刚好合适的淡淡舒适感。

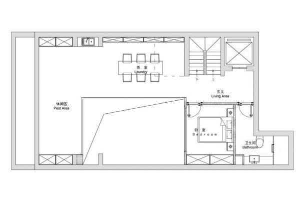
客厅空间的划分更注重会客,餐饮,空间的逻辑性关系,这种划分又能表现出灵动性,兼容性,流动性。

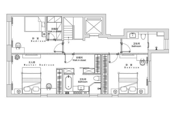
卧室没有过于抢眼的造型,亦没有丰富色彩的叠加,而是以最典型的现代简约风格,令所有的色调统一,同时,细节处流露出精致的生活情调。

餐厅是家居生活的心脏,不仅要美观,更重要的实用性,整体性。餐厅的灯光很重要既不能太强又不能太弱,灯光则以温馨和暖的黄色为基调,顶部做了简单的吊顶。

一般选择现代轻奢风格的客厅比例都比较宽敞,为了使空间利用率化。而客厅家具方面,采用灰色调以及金属元素的点缀,营造出沉稳却不失时尚的氛围。

利用自然光的角度出发,婴儿房内色彩以浅调多一些为宜。 婴儿房用品的配置应适合孩子的天性,以柔软、自然素材为佳。如地毯、原木、壁布或塑料等,可营造舒适的睡卧环境。

布局上围护体各界面要素的虚实构成要比较明显,通过虚实互换的空间形象,取得局部与整个空间的和谐。

空间上比例均匀、形式新颖、材料搭配合理、收口方式干净利落、维护方便。整个内部结构严密紧凑、空间穿插有序。

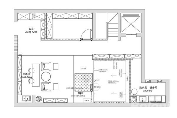
平面布局完整、大气,赋有贵族气质,杜绝虚假的奢华,体现真正的“高品质建筑”。功能与风格需紧密结合。

空间的完善功能应做到“应有尽有”的原则,应具备一定的商务功能(会客、休闲)。
网址:龙湖景粼原著 奢华 https://www.jiaju82.com/news-view-id-746110.html