和安花园别墅 奢华
发布时间:2021-03-18 00:01
案例详情 本案的男主人公从事奢侈品相关行业,职业特性,让他对品质感有极高的要求,兼具敏锐的时尚嗅觉。 虽然并未对设计师提过多要求,但反而无形中增加了设计师的工作难度。最终设计师以业主从事的职业和审美,量身定制了此案。

卫生间呈现牛奶咖啡色,牛奶咖啡作为非常中性的颜色非常适合轻奢的表现,如茶镜,棕色门板,牛奶咖啡色墙面瓷砖。

卫生间更注重室内空间的使用功能,主张废弃繁琐的装饰,布置按功能区分的原则进行,家具布置与空间密切配合,色彩造型紧跟时尚潮流,以个性化简单化装修方式打造舒适空间。

在卧室设计时,巧妙加入轻奢的一些元素,会使整个卧室看起来更加奢华精致,赋予卧室一种自然灵动的美感。

餐厅的色彩应该以温暖、淡雅、舒适的淡黄为主,以此来营造洁净、淡雅的气质,增强人们就餐时的舒适感。

奢华与金钱或其他一切无关,就像卧室里没有奢华的装饰或华丽的装饰一样。只有合适的灯光舒适度,一种无负担、高质量的生活态度。

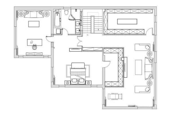
一层在空间布局上,主要由客厅,卧室,卫生间组成,面积结构上做了很好的划分。

这一层紧靠着科学设计的原则,保持限度利用自然采光,通风,合理的设计了空间布局。

这一层在空间布局上,用矮柜给客厅和餐厅做了隔断,非常简约时尚,合理的利用了空间走向流动,也视觉放大了空间面积。
网址:和安花园别墅 奢华 https://www.jiaju82.com/news-view-id-746111.html