京贸国际城 现代简约
发布时间:2021-03-20 09:00
案例详情 本案见面91㎡,套内使用面积71.5㎡。业主为单身网络新贵,喜欢简约的安曼风,所以本案大面积使用水洗橡木,让自然的木纹色,来舒缓都市中繁杂的压力,感受家的恬静舒适。

水洗橡木的木本色,永远是那么的亲近自然;地面木纹砖,让地面有了瓷砖易打理的特性,视觉上又不失温润自然。

次卧主要是工作空间,附带榻榻米作为临时休息的空间;局部新深灰橡耐磨板的开放格,配合灯光,和大面积的水洗橡木虚实结合,既不显得拥挤,又让空间更有层次。

格栅墙板的使用提升了整体空间的档次感,水洗橡木和灰色壁布的结合让空间氛围更加安逸。衣柜侧方的深灰色开放格,打破了主卧门正对柜子侧壁的拥堵感。

客厅无主灯设计,层高仅有2.55米,不再适合做吊顶,故使用简介的线条灯及墙面装饰灯带,保证整个空间的灯光层次感的同时,又不增加额外的装饰。

灰色系石纹肌理砖和水洗橡木的配合,让空间总是那么纯净自然。暗埋龙头、顶喷花洒、挂墙座厕的使用,少了繁多的管件,让一切都那么简单。

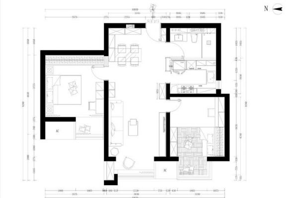
整体空间方正规则,通过主卧门洞位置变化,增大主卧收纳空间,同时也增加了餐区位置,整合出一个西厨的空间。厨房门洞原始在卫生间的手盆对面,厨房门洞调整后,厨房空间变大,卫生间的使用也更合理。
网址:京贸国际城 现代简约 https://www.jiaju82.com/news-view-id-746597.html