橙色年代 现代简约
发布时间:2021-03-20 09:01
案例详情 本案为LOFT户型,两层套内面积共128㎡。常住人口为4人,业主夫妇2人和两个小女儿。业主喜欢简洁明快,大气中更显温馨的感觉,所以本案风格定位为轻奢简约风,通过博洛尼现有的水洗橡木和亚光暖白烤漆材质的运用,来营造整体氛围。

水洗橡木格栅的橡木本色和灰色石材纹理岩板的配合,让空间温馨不失大气奢华;不同进深的墙面展柜配合灯光使用,让本身只有储物功能的柜子变得更加灵动。

背阳面的开放式厨房,大面积的白色让空间更加通透,烟熏橡木色的开放格和玻璃门,让空间的色彩更有层次。中岛通过岛台和活动餐桌的结合,让空间在美观大气的同时,餐桌又可以随时挪开,提供更多就餐位置。

大面积粉色和绿色的运用,让整个空间更加灵动温婉,吊线灯的使用,让空间的整体档次又提升一步。粉,绿,永远不变的少女心。

楼梯间原本宽度只有90公分宽,十分狭窄。通过墙体改造,做出左侧墙面的弧形展示空间,视觉拉大楼梯间宽度;线性灯的使用更突显挑空感觉。

小女儿房为狭长空间,且在背阳面,通过大面积留白,整体提高房间亮度,粉色敞开格和墙面粉绿交叉使用的圆环灯,让房间在明快同时,不失少女初心。

木格栅配合淡暖灰墙面,烘托空间的整体轻奢调性,墙面黑色背光线型灯的横向分割,让空间更有层次。楼梯的悬空设计玻璃扶手的运用,更显空间敞亮。

床头背景通过波浪板的使用,在改变床头整体形体的同时,又不会增加很多费用;水洗橡木色半高床头背景墙配合线性灯和吊线灯,让极简空间总有那么一点奢华。

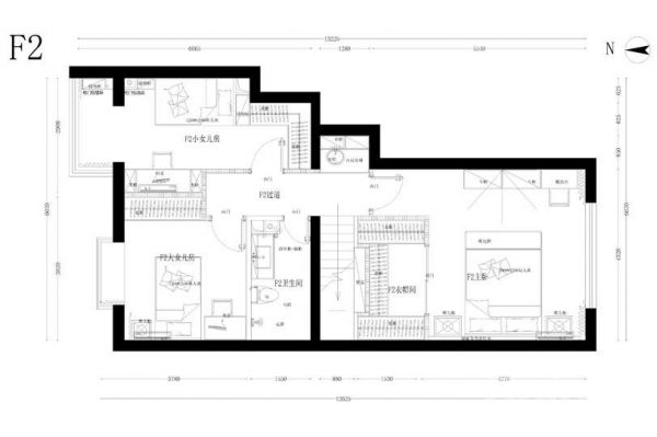
二层为静区,格局为主卧和两个儿童;楼梯间内设置了一个水吧,让二层生活区更加便利;楼梯间的局部改造,也让楼梯间显得更宽敞。

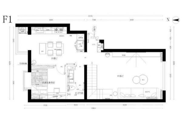
一层整个为动区,附带一个书房兼顾客房;开放式厨房兼顾餐厅,整个空间更加通透,视觉完全放开。
网址:橙色年代 现代简约 https://www.jiaju82.com/news-view-id-746598.html