欧陆经典老房翻新北京装修
发布时间:2023-05-20 09:00
案例详情 客户追求鲜明的色彩,空间彰显个性,不循规蹈矩,打破常规,两个人住,希望空间满足实用的同时更多的彰显品质和个人性格。

客厅区域结合阳台空间做设计,电视柜采用新型彩色金属展架,深色箱体配合灯光来设计,凸显出柜体的炫酷,阳台空间墙面马赛克装饰配上灰蓝色的矮柜,让空间更具清爽感。

沙发背景墙空间设计相对简约一些,精选了和电视空间呼应的沙发布艺色和装饰艺术画,地面选用水泥机理的地砖让空间更具质感。

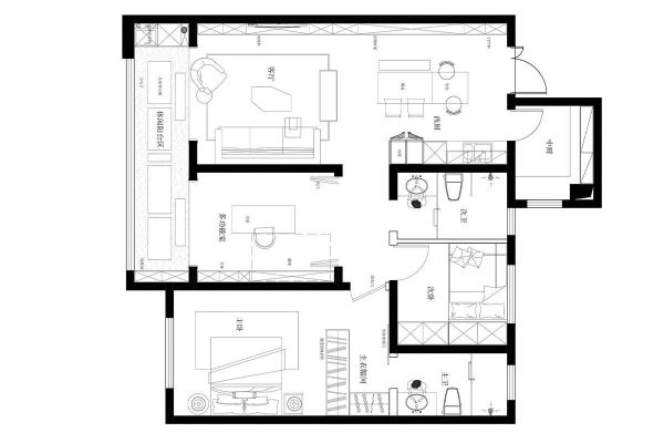
餐厅空间也是进门门厅空间,采用中岛餐桌的形式设计,加一个非常精致的吊灯的装饰。进门右手边做了三个功能分区,门厅柜空间,艺术区空间,电视展柜空间。

主卧室空间设计出了一个衣帽间的空间,采用彩钢加玻璃的形式更具展示型,空间通透,床头采用硬包的形式内嵌灯带。

该户型是个南北通透的户型,北入户,进门厨房,餐厅加客厅的区域,整体动静分区明确,南向客厅加两个卧室,主卧套间加北向次卧空间。
网址:欧陆经典老房翻新北京装修 https://www.jiaju82.com/news-view-id-844519.html