海润国际现代简约北京装修
发布时间:2023-05-20 09:00
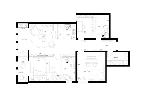
案例详情 营造两个人喜欢的且惬意的生活方式,个性,随性,浪漫,有格调,兴趣相伴,功能相伴,创作相伴,理想相伴。

客餐厅厨房设计在一个空间,整体以奶油色调来搭配,餐桌用岩板的材料来设计和橱柜形成搭接的关系,厨房吊地柜中间的岩板穿插到沙发背景墙的位置,及达到厨房台面防水也实现了客餐厨的设计统一。

主卧室空间设计了一个衣帽间的区域,即有了衣帽间的仪式感,也可以挡一下主卫门对着床的弊端,侧边墙设计了大面积的镜子,视野上扩充了衣帽间的大小。

书房空间是原本的厨房空间改造过来的,通过柜体隐蔽了所有的管道烟道,整体设计硬朗,地面采用鱼骨拼的灰色地板,浅灰色门板加深色柜体,典型的男性独立书房空间。

女主人的拍摄间,整体奶油灰色系,墙面艺术涂料,配上带灯带的极窄踢脚线,原木色的柜体加彩色玻璃隔板做跳色,素雅中跳脱出一抹色彩。

户型是全南的户型,三居室空间,客户需要有一个书房空间,给客户把厨房设计到了客厅空间,餐吧区域,把厨房改成了书房空间。
网址:海润国际现代简约北京装修 https://www.jiaju82.com/news-view-id-844520.html